13348 Highway 260Manning, SC 29102




Mortgage Calculator
Monthly Payment (Est.)
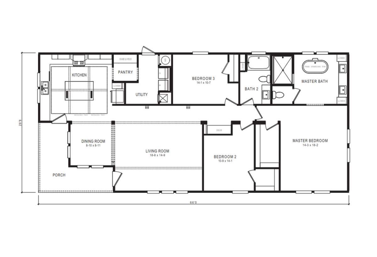
$1,597Currently under construction and located just minutes from the shores of Lake Marion, this property at 13348 Highway 260 in Manning offers the perfect opportunity to enjoy the relaxed lake lifestyle so many buyers are looking for. Situated on approximately 0.35 acres, the property will feature the Clayton Homes ''Southern Belle'' Model 1434, offering approximately 1,811 square feet with 3 bedrooms and 2 full bathrooms in a thoughtfully designed open floor plan. The spacious layout connects the living room, dining area, and kitchen, creating a comfortable setting for everyday living as well as gatherings with family and friends. The kitchen serves as the heart of the home with a large center island, abundant cabinetry, and clear sightlines into the main living areas.The private primary suite provides a peaceful retreat with a walk-in closet and an en-suite bath featuring dual vanities, a soaking tub, and a separate shower. One of the standout features of this property is the detached in-law suite, offering 2 additional bedrooms, 1 full bathroom, and a full kitchen. This flexible space can serve many purposes, including extended family living, guest accommodations, private space for visitors, or potential rental or vacation rental opportunities near the lake. Outdoor recreation is just minutes away, with Lake Marion public boat landings nearby, including the C. Alex Harvin III Landing and Borrow Pit Landing, providing convenient access for boating, fishing, and enjoying time on the water. The location also places you within a short drive of local dining favorites such as Fayz at the Lake, along with the shops, restaurants, and conveniences of Manning and Santee. Golf courses, marinas, and easy access to I-95 make travel to Charleston, Columbia, and the coast simple and convenient. With construction currently underway, this is a great opportunity to secure a home in the Lake Marion area before the summer season arrives. Whether you are searching for a primary residence, weekend retreat, or an investment property near the water, this property offers flexibility, location, and the chance to enjoy everything the lake lifestyle has to offer.
| yesterday | Listing updated with changes from the MLS® | |
| 2 days ago | Listing first seen on site |
Listing information is provided by Participants of the CHS Regional MLS. IDX information is provided exclusively for personal, non-commercial use, and may not be used for any purpose other than to identify prospective properties consumers may be interested in purchasing. Information is deemed reliable but not guaranteed. Copyright 2026, CHS Regional MLS.
Last checked: 2026-03-12 03:30 AM UTC

Did you know? You can invite friends and family to your search. They can join your search, rate and discuss listings with you.